Bâtiment commercial en vente à Poligny

Dernière mise à jour : 19 mars 2026

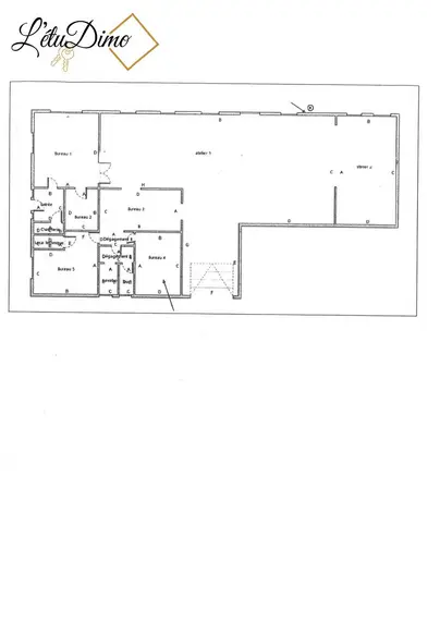
L'agence L’EtuDimo propose de découvrir ce bâtiment commercial libre de toute occupation de 307 m², situé à Poligny sur un axe passant.

Bâtiment composé :
Entrée cloisonnée
Cinq bureau
Grande partie atelier, avec accès direct
Exterieur par porte de garage

Extérieur :
Parking
Terrain plat à l’arrière du bâtiment
Chauffage au gaz avec chaudière individuelle
Pas de charge de co propriété
DPE : C
GES : C

💶 Prix d’appel : 190 000 €

Renseignements :
Catherine PAIVA DA SILVA 06 44 20 14 27 / 03 63 86 16 94 / letudimo@gmail.com